+48 22 59 05 000

pn.-pt. 8-20

Kontakt i pomoc^
Kontakt i pomoc
Zamów rozmowę
Napisz do nas
Pomoc w kredycie
Bezpłatna analiza działki
logo
ulubione 0
REKLAMA
REKLAMA
AG081

Eryk (z wiatą)

wersja lustrzana
Rzuty
Działka
Parametry
Koszty
Podobne
Zmiany
Dokumentacja
Dodatki
REKLAMA

Rzuty, przekrój, elewacje

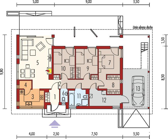
Parter 89,19 m2
Wersja lustrzana
Pomieszczenie Użytkowa
1
przedsionek
3,01 m2
2
hol
8,07 m2
3
kuchnia
7,02 m2
4
spiżarnia
1,63 m2
5
pokój dzienny + jadalnia
26,21 m2
6
wc
1,61 m2
7
sypialnia
11,15 m2
8
garderoba
4,18 m2
9
sypialnia
10,61 m2
10
sypialnia
10,42 m2
11
łazienka
5,28 m2
Razem 89,19 m2
12
kotłownia
7,08 m2
13
wiata garażowa
30,45 m2

W nawiasach podano powierzchnie pomieszczenia netto

Przekrój
Wersja lustrzana
Przekrój
Kąt nachylenia dachu 26°
Wysokość budynku 6,08 m
REKLAMA

Działka

Wybór działki to jedna z ważniejszych decyzji poprzedzających budowę wymarzonego domu. Oczywiście najważniejsza jest jej lokalizacja, ale trzeba także przeanalizować lokalne ograniczenia wyszczególnione w miejscowym planie zagospodarowania przestrzennego lub w warunkach zabudowy. Często zapisy w w/w dokumentach uniemożliwiają budowę wybranego projektu i trzeba szukać dalej.

Ważne jest także usytuowanie działki i domu względem stron świata, gdyż to właśnie decyduje o stopniu nasłonecznienia poszczególnych pomieszczeń. Dlatego każdy projekt oferujemy w dwóch wersjach: podstawowej oraz lustrzanej, aby można było wybrać najkorzystniejszy układ pomieszczeń względem stron świata, a także względem ukształtowania krajobrazu w otoczeniu działki.

Wymiary działki
Wymiary działki (szerokość x głębokość), na której możliwe jest wybudowanie domu. Wynikają one z wymiarów budynku powiększonych o wymagane przepisami odległości poszczególnych elementów budynku od granic działki. Rzeczywistą odległość od drogi należy sprawdzić i dostosować do wymogów zawartych w MPZA lub WZ.
24.50 x 17.80 m
Przekrój
Wersja lustrzana

Parametry

Dane Techniczne
Technologia i materiały
Parametry cieplne
Powierzchnia użytkowa
Suma powierzchni pomieszczeń mierzona po wewnętrznym obrysie ścian. Na jej wielkość ma wpływ wysokość pomieszczenia i jest liczona: – w 100% – przy wysokości w świetle powyżej 2,2 m, – w 50% – przy wysokości między 1,4 m a 2,2 m, – pomija się – przy wysokości poniżej 1,4 m. Do powierzchni użytkowej domu nie dolicza się powierzchni niektórych pomieszczeń, np. piwnicy, garażu, kotłowni, strychu.
89,19 m2
Powierzchnia zabudowy
Powierzchnia mierzona po obrysie zewnętrznych krawędzi wykończonego budynku z uwzględnieniem powierzchni nadwieszonych (np. wykusz). Nie dolicza się do niej elementów drugorzędnych (np. schodów zewnętrznych, daszków, ramp) oraz elementów niewystających ponad powierzchnię terenu
170,31 m2
Powierzchnia netto
Powierzchnia wszystkich pomieszczeń budynku mierzona na poziomie podłogi, po wewnętrznym obrysie ścian w stanie wykończonym. Na jej wartość nie wpływa wysokość pomieszczeń.
149,15 m2
Powierzchnia dodatkowa
Dodatkowe powierzchnie niewliczane do powierzchni użytkowej: piwnica + garaż + kotłownia + strych + poddasze do adaptacji.
7,08 m2
Kąt nachylenia dachu
26°
Kubatura
Objętość budynku liczona wraz z przegrodami zewnętrznymi i wewnętrznymi (ścianami, stropem, dachem i podmurówką)
395,75 m3
Wysokość budynku
Wysokość mierzona od poziomu terenu przy wejściu do budynku do najwyższego punktu dachu – kalenicy
6,08 m
Wymiary budynku
17,5 x 9,8 m
Wymiary działki
Wymiary działki (szerokość x głębokość), na której możliwe jest wybudowanie domu. Wynikają one z wymiarów budynku powiększonych o wymagane przepisami odległości poszczególnych elementów budynku od granic działki. Rzeczywistą odległość od drogi należy sprawdzić i dostosować do wymogów zawartych w MPZA lub WZ
24,5 x 17,8 m
Pokoje (z salonem)
Liczba wszystkich pokoi
4
Łazienki i wc
Suma łazienek i wc
2
Sezonowość
Całoroczny
REKLAMA

Opis projektu

Dom z Kolekcji Bianko.
Domy z Kolekcji Bianco zostały zaprojektowane z najwyższą troską o ergonomię i komfort użytkowy. W każdym projekcie z Kolekcji Bianco zminimalizowano ilość pionów instalacyjnych. W domach z Kolekcji Bianco strefa dzienna jest wyraźnie oddzielona od części gospodarczej i sanitarnej, co podnosi komfort użytkowy, a dodatkowo akcentuje reprezentacyjny charakter. Strefę nocną zaprojektowano z dbałością o jej intymny charakter. W Kolekcji Bianco dominuje ascetyczna wizja piękna – prosta, czysta, doskonała. 

Charakterystyka: Dom parterowy, niepodpiwniczony, z wiatą garażową
Przeznaczenie: Dom dla 2-4-osobowej rodziny 

Technologia i konstrukcja:
Fundamenty: ławy, bloczki betonowe 24 cm, ocieplenie styropian 10 cm
Ściany zewnętrzne: murowane, dwuwarstwowe, beton komórkowy Ytong 24 cm, ocieplenie 12 cm
Strop: strop gęstożebrowy Teriva, ocieplenie wełna mineralna 20 cm
Dach: konstrukcja drewniana, dachówka cementowa IBF, więźba dachowa dostępna również w systemie prefabrykacji drewnianej 

Rozwiązania instalacyjne:
Ogrzewanie: kocioł gazowy, rozprowadzenie ciepła: grzejniki
Wentylacja: grawitacyjna 

Wykończenie:
Elewacje: tynk cienkowarstwowy mineralny, okładzina okładzina z płyty HPL z naturalną okleiną drewnianą firmy Prodema, okładzina z płytek kamiennych
Stolarka: drewniana, PVC lub aluminiowa, drzwi wejściowe firmy Hörmann, rolety zewnętrzne w systemie CleverBox firmy BeClever 

Wersje zapytaj o dostępność:
- Eryk - bez garażu, z garażem jedno- lub dwustanowiskowym
- Eryk ENERGO PLUS – instalacje energooszczędne: pompa ciepła, ogrzewanie podłogowe, wentylacja mechaniczna z rekuperacją, system solarny; taki sam układ funkcjonalny, różne wersje garaży
- Eryk MULTI-COMFORT - dom z rozwiązaniami materiałowo-technologicznymi Grupy Saint-Gobain, taki sam układ funkcjonalny, różne wersje garaży
- Eryk II – podobny układ funkcjonalny, różne wersje garaży
- Eryk III – podobny układ funkcjonalny, inne wykończenie elewacji, różne wersje garaży
- Eryk IV ECONOMIC – podobny układ funkcjonalny, inne wykończenie elewacji, różne wersje garaży

Wersje z dachem o kącie nachylenia 30°:
- Eryk (30 stopni), Eryk z wiatą (30 stopni)
- Eryk G1 (30 stopni),  Eryk G1 MULTI-COMFORT (30 stopni)
- Eryk II G1 (30 stopni)

- odbicie lustrzane do każdej wersji 

Istnieje techniczna możliwość:
- podpiwniczenia budynku
- zmiany kąta nachylenia dachu do 30º
- wykonania budynku w technologii szkieletowej 

Atuty projektu okiem architekta:
- Praktyczna wiata z atrakcyjną antresolą
- Duże przeszklenia od strony tarasu, salon i sypialnie z widokiem na ogród
- Zacieniony taras w podcieniu
- Główna sypialnia z garderobą
- Kuchnia z praktyczną spiżarnią

Koszty

Orientacyjne koszty budowy netto - wycena wskaźnikowa Ceny aktualne na: IV kwartał 2025
Jak dokonujemy wyliczeń? icon arrow
Razem (etapy 1-3): 455 000 zł
1. Stan zero
Koszt etapu 101 600 zł
Zakres prac

wytyczenie budynku i roboty ziemne; ławy i stopy fundamentowe; ściany podziemne z izolacjami cieplnymi i przeciwwilgociowymi

2. Stan surowy otwarty
Koszt etapu + 291 600 zł
Zakres prac

ściany murowane zewnętrzne i wewnętrzne; stropy i schody wewnętrzne; konstrukcja dachu z pokryciem, obróbkami, rynnami i rurami spustowymi; podłoża pod posadzki ( np. chudy beton)

3. Stan surowy zamknięty
Koszt etapu + 61 900 zł
Zakres prac

Stan zero (wytyczenie budynku i roboty ziemne; ławy i stopy fundamentowe; ściany podziemne z izolacjami cieplnymi i przeciwwilgociowymi) oraz stan surowy (ściany murowane z zewnętrzne i wewnętrzne; stropy i schody wewnętrzne, konstrukcja dachu z pokryciem, obróbkami, rynnami i rurami spustowymi; podłoża pod posadzki (np. chudy beton), okna i drzwi zewnętrzne; bramy garażowe; warstwy wyrównawcze pod posadzki na gruncie i na stropie z izolacjami cieplnymi i przeciwwilgociowymi).

Razem (etapy 1-3): 455 000 zł
4. Instalacje elektryczne
Koszt etapu od 62,40 do 219,70 zł/m2

*

Zakres prac

wewnętrzna instalacja oświetleniowa; instalacja gniazd wtykowych; instalacja siły oraz instalacja odgromowa i inne wewnętrzne instalacje teletechniczne

5. Instalacje sanitarne
Koszt etapu od 232,70 do 910 zł/m2

**

Zakres prac

wewnętrzna instalacja wod. - kan. z przyborami sanitarnymi i bateriami; instalacja c.o. z kotłem i grzejnikami, bez kominka; instalacja gazowa bez osprzętu kuchennego; wentylacja mechaniczna ( jeśli występuje)

6. Wykończenie zewnętrzne
Koszt etapu od 126,10 do 638,30 zł/m2

***

Zakres prac

system dociepleń i tynki zewnętrzne z malowaniem; okładziny elewacyjne; balustrady, parapety zewnętrzne i inne roboty zewnętrzne np. taras, opaski wokół domu, schody zewnętrzne

7. Wykończenie wewnętrzne
Koszt etapu od 429 do 878,80 zł/m2

***

Zakres prac

tynki wewnętrzne, drzwi i okna wewnętrzne, lekkie ścianki działowe, roboty malarskie, posadzki i inne prace wykończeniowe

* w zależności od ilości punktów elektrycznych na 1m2

** w zależności od ilości punktów sanitarnych na 1m2 oraz ilości (odległości) instalacji rurowej

*** w zależności od rodzaju użytych meteriałów i specyfikacji wykończenia

REKLAMA

Zmiany w projekcie

Zobacz zakres zmian, które możesz wprowadzić, w tym projekcie bez zgody autora.
Lista możliwych zmian

Jeśli zmiany, które chcesz wprowadzić nie są ujęte w powyższym zestawieniu, skontaktuj się z nami. Nasz architekt przeanalizuje i doradzi, które z Twoich propozycji warto wdrożyć. O zgodę na zmiany możesz wystąpić nie tylko w momencie zakupu projektu, ale także później i otrzymasz ją bezpłatnie w ciągu kilku dni.

Dokumentacja (zawartość pakietu projektowego)

Dodatki

Pakiet dodatków, który otrzymasz razem z projektem

addon
Teczka inwestora
Do przechowywania niezbędnej dokumentacji
addon
Kupony rabatowe na zakupy
Dzięki którym zaoszczędzisz nawet kilkanaście tysięcy złotych.
addon
Projekty małej architektury
Wybudujesz samodzielnie m.in. domek dla dzieci czy altanę z grillem.
Pamiętaj
dostawa
Wysyłkę projektu ze wszystkimi dodatkami na terenie Polski bierzemy na siebie. Ty wybierasz, gdzie odbierzesz swój projekt. Masz do wyboru kuriera DPD lub punkty Paczkomat InPost 24/7.
zwroty

Masz 30 dni na zwrot i 365 dni na wymianę projektu