+48 22 59 05 000

pn.-pt. 8-20

Kontakt i pomoc^
Kontakt i pomoc
Zamów rozmowę
Napisz do nas
Pomoc w kredycie
Bezpłatna analiza działki
logo
ulubione 0
REKLAMA
REKLAMA
EGD081

Projekt domu EG-81

wersja lustrzana
Rzuty
Działka
Parametry
Koszty
Podobne
Zmiany
Pliki do pobrania
Dokumentacja
Dodatki
REKLAMA

Rzuty, przekrój, elewacje

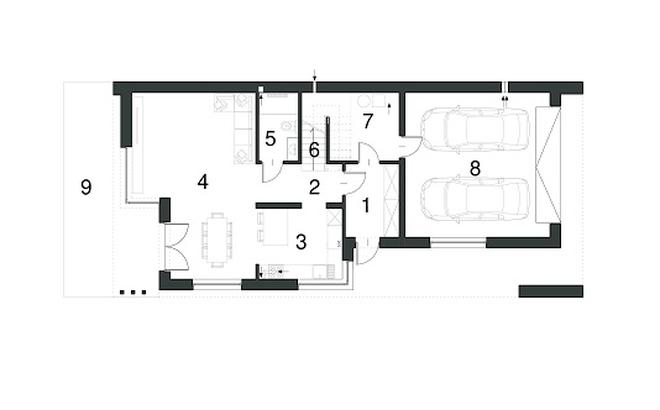
Parter 62,01 m2
Wersja lustrzana
Pomieszczenie Użytkowa
1
przedsionek
6,5 m2
2
korytarz
5,2 m2
3
kuchnia
9,91 m2
4
pokój dzienny + jadalnia
32,8 m2
5
łazienka
4,44 m2
6
schody
3,16 m2
Razem 62,01 m2
7
kotłownia
7,68 m2
8
garaż
34,28 m2
9
taras

W nawiasach podano powierzchnie pomieszczenia netto

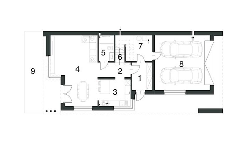
Piętro 85,8 m2
Wersja lustrzana
Pomieszczenie Użytkowa
1
korytarz
8,41 m2
2
pom. gosp.
5,38 m2
3
garderoba
8,31 m2
4
pokój
14,41 m2
5
pokój
13,45 m2
6
pokój
13,49 m2
7
pokój
11,9 m2
8
łazienka
7,29 m2
9
schody
3,16 m2
Razem 85,8 m2
10
taras (14,05)
11
taras (30,45)

W nawiasach podano powierzchnie pomieszczenia netto

Elewacje
Wersja lustrzana
Elewacja 1
Elewacja 1
Elewacja 2
Elewacja 3
Elewacja 4
REKLAMA

Działka

Wybór działki to jedna z ważniejszych decyzji poprzedzających budowę wymarzonego domu. Oczywiście najważniejsza jest jej lokalizacja, ale trzeba także przeanalizować lokalne ograniczenia wyszczególnione w miejscowym planie zagospodarowania przestrzennego lub w warunkach zabudowy. Często zapisy w w/w dokumentach uniemożliwiają budowę wybranego projektu i trzeba szukać dalej.

Ważne jest także usytuowanie działki i domu względem stron świata, gdyż to właśnie decyduje o stopniu nasłonecznienia poszczególnych pomieszczeń. Dlatego każdy projekt oferujemy w dwóch wersjach: podstawowej oraz lustrzanej, aby można było wybrać najkorzystniejszy układ pomieszczeń względem stron świata, a także względem ukształtowania krajobrazu w otoczeniu działki.

Wymiary działki
Wymiary działki (szerokość x głębokość), na której możliwe jest wybudowanie domu. Wynikają one z wymiarów budynku powiększonych o wymagane przepisami odległości poszczególnych elementów budynku od granic działki. Rzeczywistą odległość od drogi należy sprawdzić i dostosować do wymogów zawartych w MPZA lub WZ.
15.44 x 27.70 m
Przekrój
Wersja lustrzana

Parametry

W dokumentacji uwzględniono także projekt pompy ciepła do przygotowania ciepłej wody użytkowej (cwu)

Dane Techniczne
Technologia i materiały
Parametry cieplne
Powierzchnia użytkowa
Suma powierzchni pomieszczeń mierzona po wewnętrznym obrysie ścian. Na jej wielkość ma wpływ wysokość pomieszczenia i jest liczona: – w 100% – przy wysokości w świetle powyżej 2,2 m, – w 50% – przy wysokości między 1,4 m a 2,2 m, – pomija się – przy wysokości poniżej 1,4 m. Do powierzchni użytkowej domu nie dolicza się powierzchni niektórych pomieszczeń, np. piwnicy, garażu, kotłowni, strychu.
147,81 m2
Powierzchnia zabudowy
Powierzchnia mierzona po obrysie zewnętrznych krawędzi wykończonego budynku z uwzględnieniem powierzchni nadwieszonych (np. wykusz). Nie dolicza się do niej elementów drugorzędnych (np. schodów zewnętrznych, daszków, ramp) oraz elementów niewystających ponad powierzchnię terenu
132,67 m2
Powierzchnia netto
Powierzchnia wszystkich pomieszczeń budynku mierzona na poziomie podłogi, po wewnętrznym obrysie ścian w stanie wykończonym. Na jej wartość nie wpływa wysokość pomieszczeń.
189,77 m2
Powierzchnia dodatkowa
Dodatkowe powierzchnie niewliczane do powierzchni użytkowej: piwnica + garaż + kotłownia + strych + poddasze do adaptacji.
41,96 m2
Powierzchnia garażu
34,28 m2
Kąt nachylenia dachu
Kubatura
Objętość budynku liczona wraz z przegrodami zewnętrznymi i wewnętrznymi (ścianami, stropem, dachem i podmurówką)
533,3 m3
Wysokość budynku
Wysokość mierzona od poziomu terenu przy wejściu do budynku do najwyższego punktu dachu – kalenicy
7,35 m
Wymiary budynku
8,74 x 19 m
Wymiary działki
Wymiary działki (szerokość x głębokość), na której możliwe jest wybudowanie domu. Wynikają one z wymiarów budynku powiększonych o wymagane przepisami odległości poszczególnych elementów budynku od granic działki. Rzeczywistą odległość od drogi należy sprawdzić i dostosować do wymogów zawartych w MPZA lub WZ
15,44 x 27,7 m
Pokoje (z salonem)
Liczba wszystkich pokoi
5
Łazienki i wc
Suma łazienek i wc
2
Miejsca postojowe
Suma miejsc postojowych (garaż + wiata garażowa)
2
Sezonowość
Całoroczny
REKLAMA

Opis projektu

Projekt domu EG-81 to propozycja domu piętrowego, z 4 sypialniami, z dwustanowiskowym garażem. Dom charakteryzuje się nowoczesnym designem, który łączy funkcjonalność z estetyką. Powierzchnia użytkowa wynosi 147.81 m², a garaż ma powierzchnię 34.28 m². Projekt ten jest idealny dla rodzin, które cenią sobie przestrzeń oraz komfort. Wysokość budynku wynosi 7.35 m, a dach jest płaski z nachyleniem 3.0 stopni. Wymiary budynku to 8.74 x 19 m, co sprawia, że jest on doskonale dopasowany do standardowych działek budowlanych. Ogrzewanie gazowe zapewnia ekonomiczne i efektywne zarządzanie energią.

Projekt domu EG-81: Układ pomieszczeń na parterze

Parter domu EG-81 został zaprojektowany z myślą o maksymalnej funkcjonalności i wygodzie mieszkańców. Wchodząc do domu, znajdziemy się w przedsionku, który prowadzi do korytarza. Po lewej stronie znajduje się przestronna kuchnia, która jest idealna do przygotowywania posiłków dla całej rodziny. Kuchnia płynnie łączy się z pokojem dziennym oraz jadalnią, tworząc otwartą przestrzeń sprzyjającą wspólnemu spędzaniu czasu. Dodatkowo na parterze znajduje się łazienka oraz schody prowadzące na piętro. W domu przewidziano również kotłownię oraz dwustanowiskowy garaż. Z pokoju dziennego można wyjść na taras, który jest doskonałym miejscem na relaks na świeżym powietrzu.

Projekt domu EG-81: Układ pomieszczeń na piętrze

Piętro domu EG-81 to przestrzeń przeznaczona głównie na odpoczynek i prywatność mieszkańców. Znajduje się tu korytarz, który prowadzi do czterech przestronnych pokoi, z których każdy może pełnić funkcję sypialni. Dodatkowo na piętrze znajduje się pomieszczenie gospodarcze oraz garderoba, które zapewniają dodatkowe miejsce do przechowywania. Łazienka na piętrze jest przestronna i komfortowa. Schody prowadzące na piętro są dobrze wkomponowane w układ pomieszczeń, a dwa tarasy na piętrze oferują dodatkową przestrzeń na świeżym powietrzu, idealną do wypoczynku. Projekt domu EG-81 dostępny także w wersji lustrzanego odbicia.

Koszty

Orientacyjne koszty budowy netto - wycena wskaźnikowa Ceny aktualne na: IV kwartał 2025
Jak dokonujemy wyliczeń? icon arrow
Razem (etapy 1-3): 515 200 zł
1. Stan zero
Koszt etapu 79 200 zł
Zakres prac

wytyczenie budynku i roboty ziemne; ławy i stopy fundamentowe; ściany podziemne z izolacjami cieplnymi i przeciwwilgociowymi

2. Stan surowy otwarty
Koszt etapu + 364 100 zł
Zakres prac

ściany murowane zewnętrzne i wewnętrzne; stropy i schody wewnętrzne; konstrukcja dachu z pokryciem, obróbkami, rynnami i rurami spustowymi; podłoża pod posadzki ( np. chudy beton)

3. Stan surowy zamknięty
Koszt etapu + 72 000 zł
Zakres prac

okna i drzwi zewnętrzne; bramy garażowe; warstwy wyrównawcze pod posadzki na gruncie i na stropie z izolacjami cieplnymi i przeciwwilgociowymi

Razem (etapy 1-3): 515 200 zł
4. Instalacje elektryczne
Koszt etapu od 62,40 do 219,70 zł/m2

*

Zakres prac

wewnętrzna instalacja oświetleniowa; instalacja gniazd wtykowych; instalacja siły oraz instalacja odgromowa i inne wewnętrzne instalacje teletechniczne

5. Instalacje sanitarne
Koszt etapu od 232,70 do 910 zł/m2

**

Zakres prac

wewnętrzna instalacja wod. - kan. z przyborami sanitarnymi i bateriami; instalacja c.o. z kotłem i grzejnikami, bez kominka; instalacja gazowa bez osprzętu kuchennego; wentylacja mechaniczna ( jeśli występuje)

6. Wykończenie zewnętrzne
Koszt etapu od 126,10 do 638,30 zł/m2

***

Zakres prac

system dociepleń i tynki zewnętrzne z malowaniem; okładziny elewacyjne; balustrady, parapety zewnętrzne i inne roboty zewnętrzne np. taras, opaski wokół domu, schody zewnętrzne

7. Wykończenie wewnętrzne
Koszt etapu od 429 do 878,80 zł/m2

***

Zakres prac

tynki wewnętrzne, drzwi i okna wewnętrzne, lekkie ścianki działowe, roboty malarskie, posadzki i inne prace wykończeniowe

* w zależności od ilości punktów elektrycznych na 1m2

** w zależności od ilości punktów sanitarnych na 1m2 oraz ilości (odległości) instalacji rurowej

*** w zależności od rodzaju użytych meteriałów i specyfikacji wykończenia

REKLAMA

Zmiany w projekcie

Zobacz zakres zmian, które możesz wprowadzić, w tym projekcie bez zgody autora.
Lista możliwych zmian

Jeśli zmiany, które chcesz wprowadzić nie są ujęte w powyższym zestawieniu, skontaktuj się z nami. Nasz architekt przeanalizuje i doradzi, które z Twoich propozycji warto wdrożyć. O zgodę na zmiany możesz wystąpić nie tylko w momencie zakupu projektu, ale także później i otrzymasz ją bezpłatnie w ciągu kilku dni.

Pliki do pobrania

Zestawienie materiałówpdf Pobierz
Rysunki szczegółowepdf Pobierz

Dokumentacja (zawartość pakietu projektowego)

Dodatki

Pakiet dodatków, który otrzymasz razem z projektem

addon
Teczka inwestora
Do przechowywania niezbędnej dokumentacji
addon
Kupony rabatowe na zakupy
Dzięki którym zaoszczędzisz nawet kilkanaście tysięcy złotych.
addon
Projekty małej architektury
Wybudujesz samodzielnie m.in. domek dla dzieci czy altanę z grillem.
Pamiętaj
dostawa
Wysyłkę projektu ze wszystkimi dodatkami na terenie Polski bierzemy na siebie. Ty wybierasz, gdzie odbierzesz swój projekt. Masz do wyboru kuriera DPD lub punkty Paczkomat InPost 24/7.
zwroty

Masz 30 dni na zwrot i 365 dni na wymianę projektu